Артикул:
GL103GR/80/3
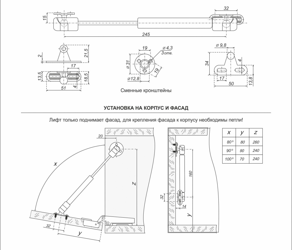
Секретерный газовый лифт GL103 предназначен для открывания фасада вниз. Модель обеспечивает плавное и мягкое движение фасада при открывании. В комплекте поставляются сменные кронштейны: для установки на фасады из массива дерева, плитных материалов (ЛДСП / МДФ) и на фасады с алюминиевыми рамками. Секретерный газовый лифт GL103 предназначен для эксплуатации в отапливаемых помещениях, но может транспортироваться при низких и высоких температурах: от -20°C до +70°C.
Рекомендован к установке с секретерными петлями HS001 или с традиционными петлями без амортизации Н100, Н102.
Рекомендован к установке с секретерными петлями HS001 или с традиционными петлями без амортизации Н100, Н102.
Материал
Металл-пластик
Цвет
GR - Серый
Тип открывания
Открытие вниз
Амортизатор
Нет
Нагрузка (кг)
8
Бренд
Boyard
Страна
Китай
Наличие
